Accéder au contenu principal
Réalisation
Projets
Concours
Atelier
Contact
Réalisation
Projets
Concours
Atelier
Contact
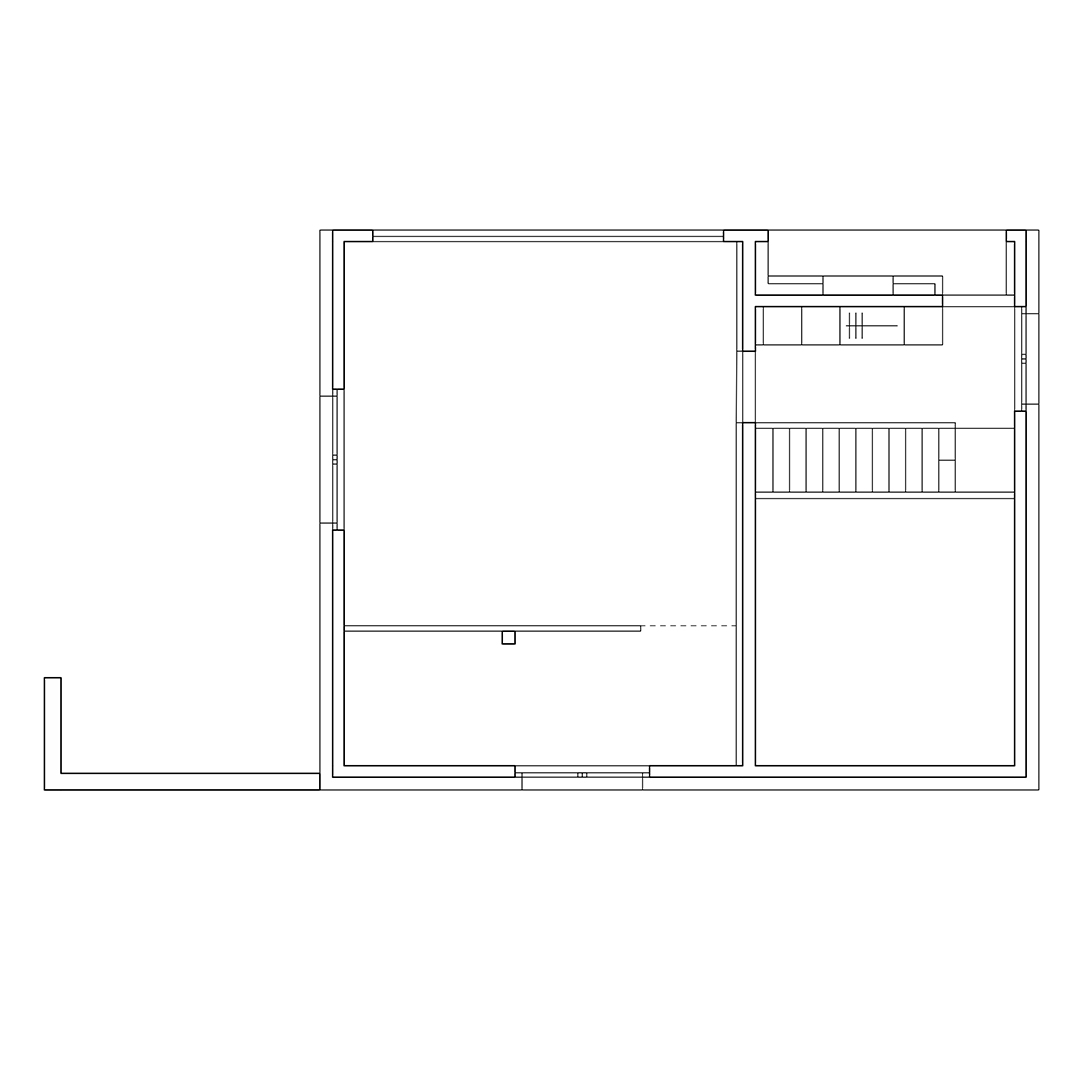
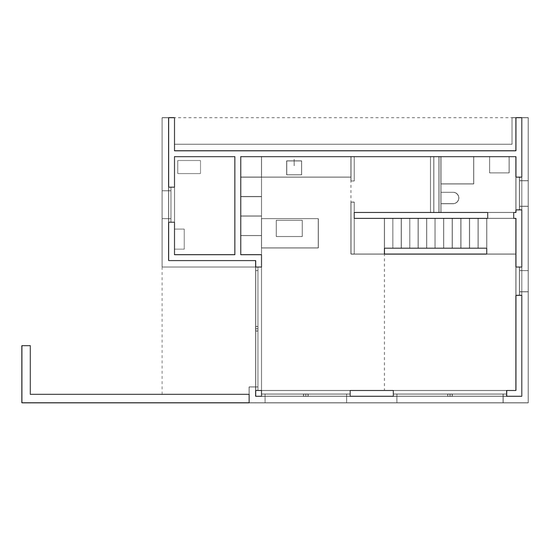
Villa les Trontieres
2021 - Randogne