Accéder au contenu principal
Réalisation
Projets
Concours
Atelier
Contact
Réalisation
Projets
Concours
Atelier
Contact
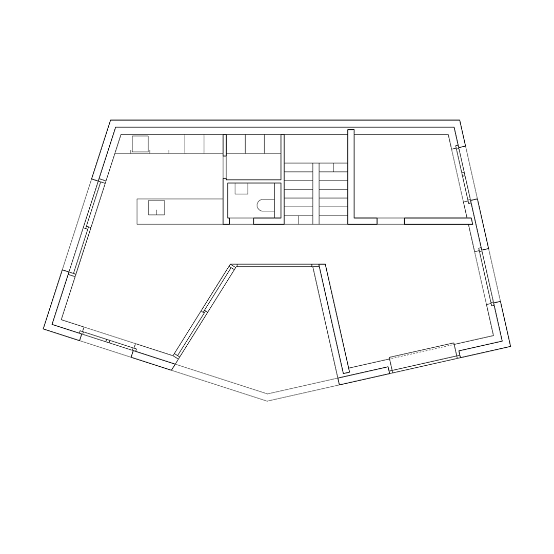
Villa Lonzereyes
2024 - Loc