Accéder au contenu principal
Réalisation
Projets
Concours
Atelier
Contact
Réalisation
Projets
Concours
Atelier
Contact
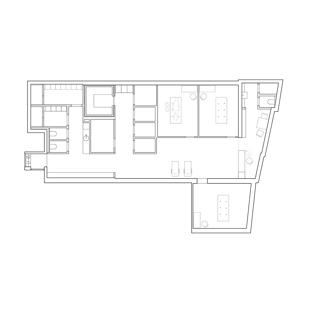
Spa hotel Central
2023 - Crans-Montana
Site internet de l'hôtel